Здається об'єкт Дніпро, Дніпропетровська, Таромское (№ 1-584-974)
Ціна: 125 000 грн.

Адреса: Дніпро, Дніпропетровська, Таромское
Характеристики
| Ціна: | 125 000 грн. |
|---|---|
| № об'єкта: | 1-584-974 |
| Тип: | торгівельні площі |
| Площа: | 187 м2 |
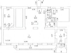
Опис
Сдается в аренду фасадное помещение площадью 187кв.м. с большим пешеходным трафиком под любой вид деятельности. Первый этаж, 2 отдельных входа (1 фасадный), зал (120 кв.м.) + 2 кабинета + кладовая + с/у, витрины, хорошее состояние. Без комиссионных. Нежилое помещение в жилом доме 6 помещений 5 этажей Общая площадь 187 м? · жилая 187 м? Дополнительно плата по счетчикам Предложение без комиссионных Вторичное жилье Нежилое помещение в жилом доме 6 помещений Дополнительно плата по счетчикам Предложение без комиссионных Вторичное жилье





