Аренда офиса 53,6 кв.м на Гагарина (№ 1-585-527)
Ціна: 8 952 грн.

Адреса: Марии Кюри ул., 5, Дніпро, Дніпропетровська
Характеристики
| Ціна: | 8 952 грн. |
|---|---|
| № об'єкта: | 1-585-527 |
| Поверх: | 2 / 3 |
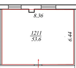
| Площа: | 54 м2 |
Опис
Аренда офиса в торгово-развлекательном центре NEO PLAZA на ул. М. Кюри, 5, Днепр.
Площадь офиса - 53,6 кв.м., 1,5-й этаж.
Офисный ремонт, разводка, Интернет, телефония, центральное кондиционирование, с/у на этаже,
В ТРЦ ведется видеонаблюдение, паркинг и парковка возле здания, возможен круглосуточный доступ.
На время военных действий стоимость аренды от 100 грн./кв.м., эксплуатация - 67 грн./кв.м.
Дополнительно оплачиваются коммунальные услуги.
ТРЦ Нео Плаза это новый формат покупок и отдыха, современные кинозалы, торговая галерея, новый формат услуг 'Дома быта', множество кафе и ресторанов.







