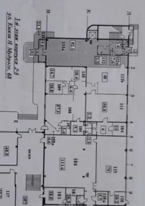
Оренда комерційного приміщення (№ 1-588-642)
Ціна: 25 600 грн.

Адреса: Ярослава Мудрого ул., Дніпро, Дніпропетровська, Центральный
Характеристики
| Ціна: | 25 600 грн. |
|---|---|
| № об'єкта: | 1-588-642 |
| Поверх: | 1 / 1 |
| Площа: | 128 м2 |
Опис
Оренда комерційного приміщення за адресою м.Дніпро, вул. Ярослава Мудрого 68 ( відділення АТ 'Приватбанк') :
- площа 128 м2;
- поверх 1;
- стан приміщення : задовільне;
- потужність є/є 25 кВт;
- санвузол;
- вартість оренди 200 грн за кв.м (без ПДВ);
- окремо комунальні послуги та опалення ( власна котельня) в сезон;
















