Здається об'єкт Каштановая ул., 15, Дніпро, Дніпропетровська, Косіора (№ 1-591-439)
Ціна: 12 000 грн.

Адреса: Каштановая ул., 15, Дніпро, Дніпропетровська, Косіора
Характеристики
| Ціна: | 12 000 грн. |
|---|---|
| № об'єкта: | 1-591-439 |
| Тип: | інше |
| Поверх: | 1 / - |
| Площа: | 294,1 м2 |
Опис
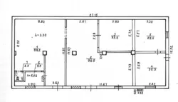
Здається окрема одноповерхова будівля площею 294,1 м2 по вул. Каштанова 15. (Вихід на вул. Б.Хмельницького у районі Б.Хмельницького 6). Промислова (складська) зона розбита на дві ділянки. Кожна ділянка зі своїми воротами. Висота стелі 3,3 м. На одній із ділянок вбудована сушильна камера (використовувалася для сушіння лісу) площею 20 м2, висота 2,8 м. Побутові приміщення з окремим входом площею 29,5 м2 та 30,3 м2. Обігрів побутівки та сушильної камери зараз здійснюється від твердопаливного котла. Електрика – 380в, 10кВт.







