Сдам склад с рампой и морозильником (№ 1-591-990)
Ціна: 52 214 грн. + комунальні

Адреса: Журналистов ул., 13, Дніпро, Дніпропетровська, пр. Правды
Характеристики
| Ціна: | 52 214 грн. + комунальні |
|---|---|
| № об'єкта: | 1-591-990 |
| Тип: | інше |
| Поверх: | 1 / 5 |
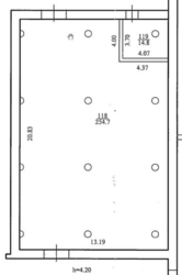
| Площа: | 254,7 м2 |
Опис
Оренда морозильного складу на території Дніпропетровського холодокомбінату.
Адреса: Дніпро, вул. Журналістів, 13 (Лівий берег)
Площа – 254,7 кв.м.
ПЕРШИЙ ПОВЕРХ.
Температурний режим від -5°С до -12°С
Висота стелі – 4,2 м.
Вантажні ліфти – 3 шт (вантажність 3,2 тонни)
Цілодобова охорона.
РАМПА. Послуги навантаження/розвантаження, 5 навантажувачів.
РЕЗЕРВНЕ ЖИВЛЕННЯ ВІД ГЕНЕРАТОРА.
Вартість – 205 грн/кв.м.
Додатково оплачуються комунальні платежі за тарифами споживання.















