Здається об'єкт Журавлиная ул., 13, Дніпро, Дніпропетровська, пр. Правды (№ 1-592-003)
Ціна: 11 165 грн.

Адреса: Журавлиная ул., 13, Дніпро, Дніпропетровська, пр. Правды
Характеристики
| Ціна: | 11 165 грн. |
|---|---|
| № об'єкта: | 1-592-003 |
| Поверх: | 2 / 2 |
| Площа: | 159 м2 |
Опис
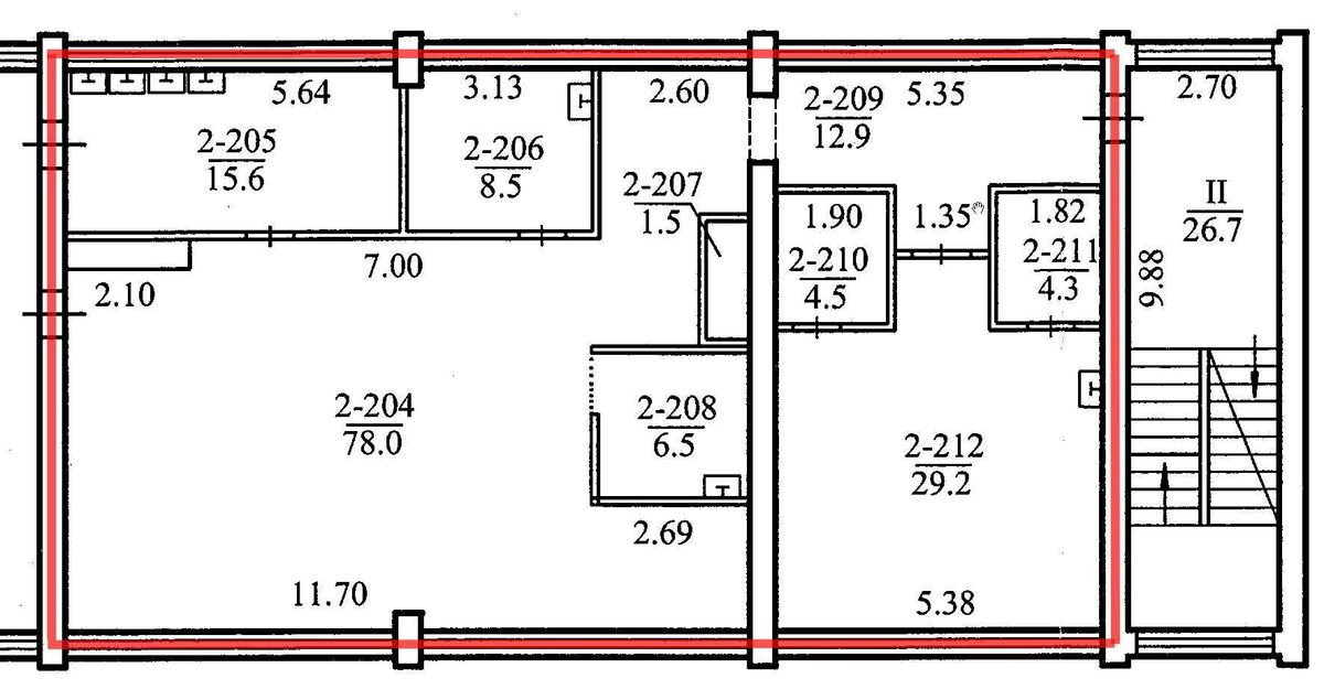
Оренда виробничо-складського приміщення у м. Дніпро.
Адреса: вул. Журналістів, 13. Територія Холодокомбінату.
Площа - 159,5 кв.м, 2-й поверх.
Складається з приміщень: 78 кв.м, 29,2 кв.м, 15,6 кв.м та 8,5 кв.м.
На стінах - плитка.
Підійде під харчове виробництво.
Електрика - 30 кВт,
Е вода та каналізація, санвузол.
Висота стелі - 2,9 м.
(підіймача немає, вхід по сходовій клітці).
Зручний під'їзд та розвантаження є місце для стоянки фур.
Вартість оренди - 50 грн./кв.м., додатково оплачується експлуатація - 20 грн./кв.м та комунальні платежі.














