Оренда морозильного складу вулиця Журналістів (Лівий берег). (№ 1-592-015)
Ціна: 155 922 грн. + комунальні

Адреса: Журналистов ул., 13, Дніпро, Дніпропетровська, Косіора
Характеристики
| Ціна: | 155 922 грн. + комунальні |
|---|---|
| № об'єкта: | 1-592-015 |
| Тип: | інше |
| Поверх: | 1 / 5 |
| Площа: | 799.6 м2 |
Опис
Оренда морозильного складу на Дніпропетровському Холодокомбінаті, вулиця Журналістів, 13 (Лівий берег).
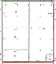
Площа – 799,6 кв.м. (складається з приміщень: 83,5 кв.м, 156,1 кв.м, 182.9 кв.м., 377,1 кв.м.)
Поверх - 1-й з 5.
Температурний режим від – 10 С до – 18 С
Резервне живлення від генератора.
Висота стелі – 4,2 м.
Рампа.
Зручні під'їзні шляхи та місце для маневру великогабаритного транспорту.
Цілодобова охорона, на території є офісні та побутові приміщення в оренду.
Додаткові послуги: навантаження/розвантаження, 5 навантажувачів.
Вартість оренди –(у ціну входить експлуатаційні платежі та електроенергія).












