Сдам в аренду помещение в ЖК Троицкий .Новострой. Красная линия. (№ 1-595-486)
Ціна: 62 400 грн. + комунальні

Характеристики
Ціна: | 62 400 грн. + комунальні |
---|---|
№ об'єкта: | 1-595-486 |
Тип: | торгівельні площі, кафе, бар, ресторан, об'єкт сфери послуг, інше |
Поверх: | 1 / 5 |
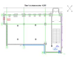
Площа: | 156 м2 |
Додатково: | окремий вхід |
Адреса: Дніпропетровська, Дніпро, Центральный, Троицкая, 5
Сдам в аренду помещение в ЖК Троицкий .Новострой. Красная линия.
+ общая площадь 156 м2
+ этаж 1
+ отдельный вход с красной линии с улицы Троицкая
+ заведеная мощность 60 кВТ
+ отопление индивидуальное электро
+ 8 фасадных окон
+Вывод су
+ отлично вариант под бар, ресторан , салон , отделение банка , клинику и тд
Цена 62 400 гривен