Продається квартира Дніпропетровська, Дніпро, пр. Правды, Аржанова ул. (№ 212-595-932)

Ціна: 53 500 $
Характеристики
Ціна: | 53 500 $ |
---|---|
№ об'єкта: | 212-595-932 |
Кімнат: | 2 |
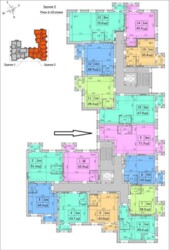
Поверх: | 9 / 10 ліфт |
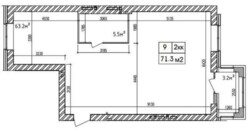
Площа: | 71 / - / 31 м2 |
Санвузол: | 1 |
Ипотека (согласие) : | - |
Додатково: | новобудова |
Адреса: Дніпропетровська, Дніпро, пр. Правды, Аржанова ул.
Продам 2-х комнатную квартиру в новом ЖК Аржанова, во 2 секции, на Слобожанском проспекте в г. Днепр.
Заявленная дата сдачи комплекса в эксплуатацию-август 2022 г.
- площадь 71.3 м2
- легко планируется в большую кухню-гостиную, гардероб, с/у и 2 спальни
- 9-й этаж
- качественный дом
- Застройщик с отличной репутацией (ЖК Добробут, ЖК Хмельницкий, ЖК Алые Паруса, ЖК СанСити, ЖК Затишний, ЖК Затишний-2, Респект Холл, Классик Холл, Барвиста, БЦ Арена Тауэр)
- до центра города 10 мин
- идеальная транспортная развязка
- школа, садик, АТБ, Сильпо, Наша Правда... все в 5-10 минутах ходьбы от ЖК
- все квартиры от Застройщика куплены