Продам 2 кімн. квартиру в новобудові в центрі міста. (№ 212-597-635)

Ціна: 90 000 $
Характеристики
Ціна: | 90 000 $ |
---|---|
№ об'єкта: | 212-597-635 |
Кімнат: | 2 розд |
Поверх: | 5 / 5 ліфт |
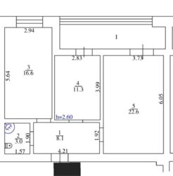
Площа: | 75 / - / 25 м2 |
Санвузол: | 1 сумісний |
Балкон: | балкон |
РАЙОНЫ: | Центр |
Ипотека (согласие) : | - |
Додатково: | новобудова |
Адреса: Полтавська, Кременчугский, Кременчуг, Кременчуг, Б.Хмельницкого, 3
В продажі двухкімнатна квартира в ЖК «Дніпровська Рів’єра».
Центр міста Кременчук.
Загальна площа 75 кВ.м.
Планування: дві роздільні кімнати і велика кухня-гостьова, велика лоджія.
5 поверх.
В домі є ліфт.
Індивідуальне опалення.
Капітальний ремонт із якісних матеріалів.
Меблі і техніка входять в вартість.
Благоустроєн просторий закритий двір, є місця для паркування машин.
Поруч розвинена вся інфраструктура.
Дуже перспективний район.
Записуйтесь на перегляд.