Продається квартира Дніпропетровська, Дніпро, Нагірка, Паторжинского ул., 17 (№ 212-697-590)

Ціна: 75 000 $
Характеристики
Ціна: | 75 000 $ |
---|---|
№ об'єкта: | 212-697-590 |
Кімнат: | 2 |
Поверх: | 4 / 4 |
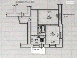
Площа: | 45 / 24 / 5 м2 |
Санвузол: | 1 |
Балкон: | балкон |
Ипотека (согласие) : | - |
Адреса: Дніпропетровська, Дніпро, Нагірка, Паторжинского ул., 17
Продам 2-х комнатную квартиру по ул. Паторжинского, Нагорный, сталинка, 45 кв.м. Произведен косметический ремонт, произведена замена водопровода и канализации, бойлер GORENJE 50 л. газовая плита Балкон застеклен, все фрамуги подвижны, потолки 3м, 4-й этаж 4-х этажного кирпичного дома. Большой уютный (зимой-теплая, летом прохладный) подъезд с домофоном. Ворота во двор автоматические. Есть ПДУ к воротам и парковка во дворе. Калитка во двор с кодовым замком. Во дворе есть детская площадка, площадка с современными новыми тренажерами. Есть все счетчики на воду, газ, электро, тепло (на подъезд). В подвале есть свой сарай 3 кв.
Рядом супермаркеты, парки, скверы, школы, детсады и т.п. кроме вокзалов (до них 10 мин. на трамвае)
Настоящему покупателю, на месте, большой торг. Риэлторам, просьба обращаться только имеющие реального покупателя.