Продається квартира Дніпропетровська, Дніпро, пр. Правды, Аржанова ул. (№ 212-740-099)

Ціна: 48 000 $
Характеристики
Ціна: | 48 000 $ |
---|---|
№ об'єкта: | 212-740-099 |
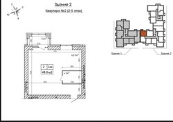
Кімнат: | 2 |
Поверх: | 3 / 10 ліфт |
Площа: | 48 / - / 16 м2 |
Санвузол: | 1 |
Балкон: | балкон |
Ипотека (согласие) : | - |
Адреса: Дніпропетровська, Дніпро, пр. Правды, Аржанова ул.