Продам 3-комнатную квартиру в Бест Хаусе Победа 1 Мандрыковская 51л (№ 212-747-991)

Ціна: 65 000 $
Характеристики
Ціна: | 65 000 $ |
---|---|
№ об'єкта: | 212-747-991 |
Кімнат: | 3 |
Поверх: | 7 / 16 ліфт |
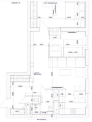
Площа: | 79 / 45 / 30 м2 |
Санвузол: | 1 |
Ипотека (согласие) : | - |
Додатково: | новобудова |
Адреса: Дніпропетровська, Дніпро, Победа-1, Мандрыковская ул., 51
Продаю 3-комнатную квартиру в ЖК Бест Хаус.
Общая площадь 79кв.м. Кухня студия - 30 кв.м.
Выполнена ламинация и зеркальное напыление на окнах, бронированная дверь. Дом сдан в эксплуатацию.
Первый и единственный владелец. Дом заселён, создано ОСМД ( квартплата 8 грн/метр) жилые тарифы на свет и воду. Видеонаблюдение, консьерж.
Квартира тёплая, дом утеплён минеральной ватой и построен из кирпича марки 250. Соседи сверху, снизу и по сторонам уже с ремонтом, поэтому шум не будет беспокоить. Рядом с домом 7 уровневый паркинг( продажа и аренда мест), платная стоянка ( 1500 грн в месяц), гостевой паркинг. 4 детские площадки, озеленение двора.
В шаговой доступности аквапарк, парк, кафе, атб и т.д
Звоните и пойдем смотреть.