Продається квартира Щорса ул., Дніпро, Дніпропетровська, Центральный (№ 212-839-314)
Ціна: 101 250 $

Щорса ул., Дніпро, Дніпропетровська, Центральный
Характеристики
| Ціна: | 101 250 $ |
|---|---|
| № об'єкта: | 212-839-314 |
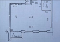
| Кімнат: | 3 |
| Поверх: | 11 / 12 ліфт |
| Площа: | 75 / - / - м2 |
| Санвузол: | 1 |
| Ипотека (согласие) : | - |
| Додатково: | новобудова |
Опис
Продаю 3к квартиру 5-ї секції (не пошкоджена). Стан - після будівництва. Вікна у двір першої черги (не постраждалі будинки). Планували в кухню-студію, 2 спальні та санвузол (у додаток 2 варіанти дизайн-проектів). Продаємо разом з паркомісцем з вдалим розміщенням біля ліфту, вартість 21000$.








