Продається квартира Буденного ул., 8, Дніпро, Дніпропетровська, Західний (№ 212-855-428)
Ціна: 25 000 $

Буденного ул., 8, Дніпро, Дніпропетровська, Західний
Характеристики
| Ціна: | 25 000 $ |
|---|---|
| № об'єкта: | 212-855-428 |
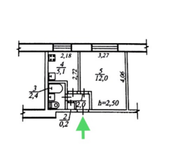
| Кімнат: | 1 |
| Поверх: | 1 / 9 |
| Площа: | 23 / - / 5 м2 |
| Санвузол: | 1 |
| Ипотека (согласие) : | - |
Опис
Продам 1-комнатную квартиру с ремонтом по ул. Данила Галицкого, 8. Ж/м Западный. Удобное месторасположения дома. В квартире выполнен качественный ремонт, установлены металлопластиковые окна и решётки, есть вся необходимая мебель и техника. При ремонте заменены все коммуникации. - тёплый пол - большой угловой диван - письменный стол - газовая плита - вытяжка - холодильник - бойлер - стиральная машина Закрытый коридор Рядом АТБ, магазины, аптеки, школа, садик, остановка транспорта. Готовы обсуждать Ваши предложения








