Продається квартира Дніпропетровська, Дніпро, Центральный, Щорса ул. (№ 212-863-536)

Ціна: 82 000 $
Характеристики
| Ціна: | 82 000 $ |
|---|---|
| № об'єкта: | 212-863-536 |
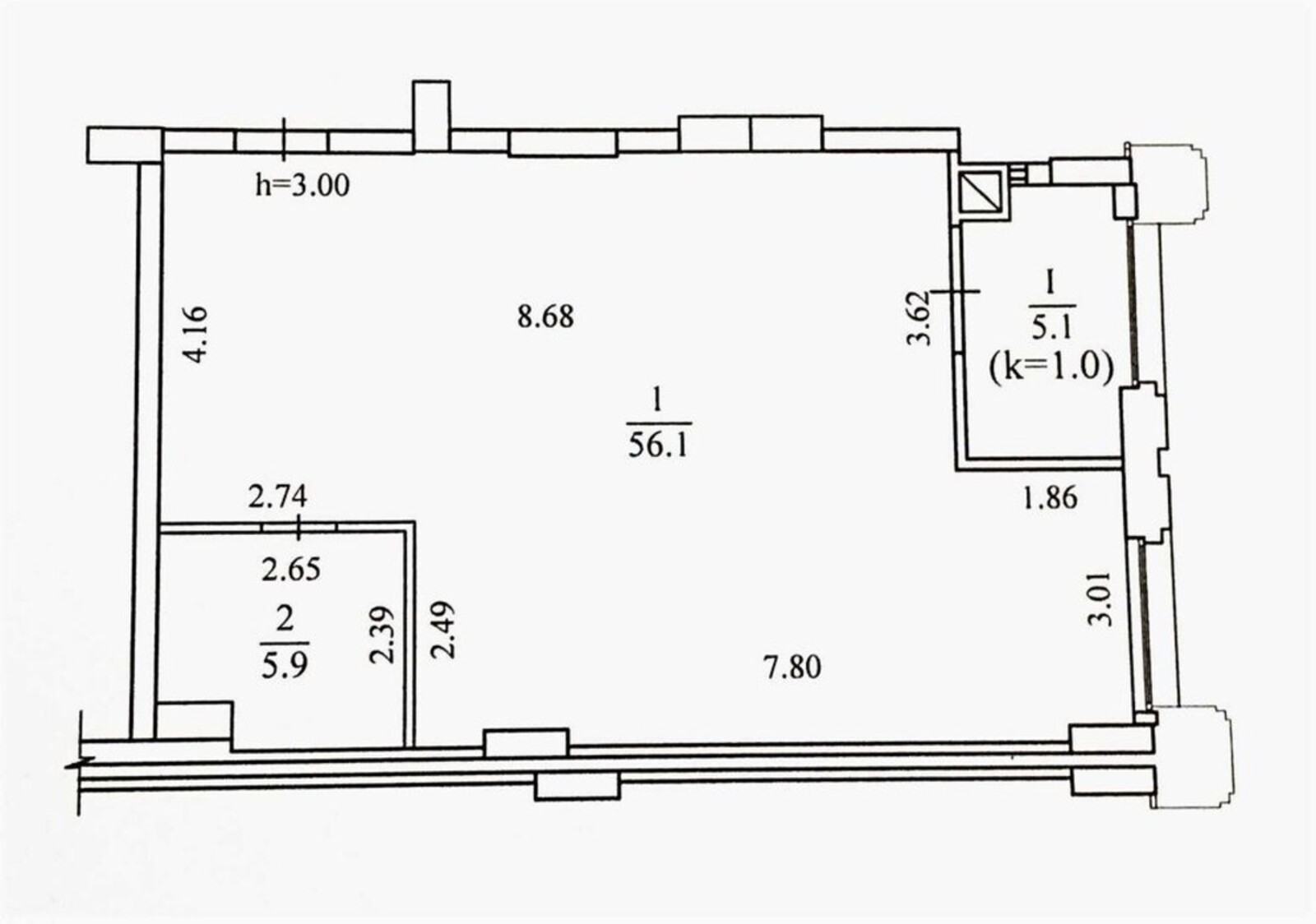
| Кімнат: | 2 |
| Поверх: | 10 / 12 ліфт |
| Площа: | 67 / - / 12 м2 |
| Санвузол: | 1 |
| Ипотека (согласие) : | - |
| Додатково: | новобудова |
Адреса: Дніпропетровська, Дніпро, Центральный, Щорса ул.
Продаётся квартира в ЖК «GENEVE».
ул. Костомаровская 1-А, Секция 2.
- Новострой;
- После строителей;
- 10 этаж из 12;
- 67,1 кв.м;
- Свободная планировка (Возможность сделать 1 или 2 спальни);
- Высота потолков 3 метра;
- 2 окна;
- Вид на Днепр;
- Квартира под ремонт;
- Не угловая;
- Индивидуальный газовый котел;
- Выполнена стяжка пола;
- Стальные панельные радиаторы.
Расположена в ЖК бизнес класса «GENEVE».
- Монолитно-каркасная технология строительства;
- Закрытая территория;
- Охрана и видеонаблюдение;
- Гостевой и подземный паркинг;
- На территории размещены: спортивные площадки, игровые зоны для детей, места отдыха;
- Развитая инфраструктура.







