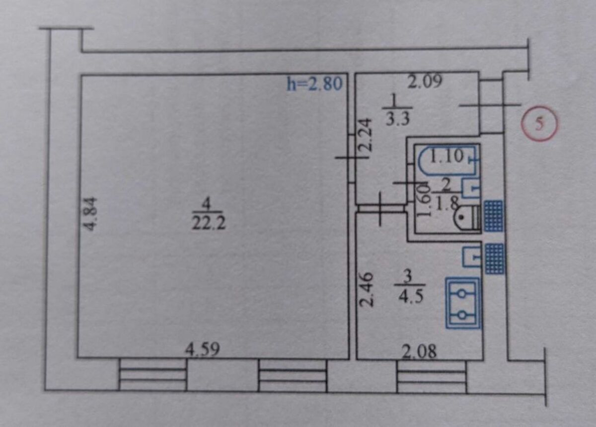
Продам 1 х ком. Квартиру в Нагірній частині. (№ 212-981-728)

Ціна: 14 500 $
Характеристики
Ціна: | 14 500 $ |
---|---|
№ об'єкта: | 212-981-728 |
Кімнат: | 1 |
Поверх: | 2 / 2 |
Площа: | 32 / - / 4 м2 |
РАЙОНЫ: | Нагорка |
Ипотека (согласие) : | - |
Адреса: Полтавська, Кременчугский, Кременчуг
1 х кімнатна Квартира, 2 й поверх з двох поверхового будинку. По вулиці Свободи.Житловий стан. Тихий, спокійний район з дуже зручним розташуванням. Поруч є все для комфортного життя: школа, садочок, супермаркети, різні магазини, зупинка громадського транспорту, кавярні, макдональдс, лікарня, аптеки, поблизу сквер Пономаренко. Вся детальна інформація по телефону. Телефонуйте!