Продається квартира Полтавська, Кременчугский, Кременчуг (№ 213-192-020)

Ціна: 700 000 грн.
Характеристики
| Ціна: | 700 000 грн. |
|---|---|
| № об'єкта: | 213-192-020 |
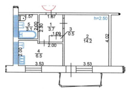
| Кімнат: | 1 |
| Поверх: | 9 / 9 |
| Площа: | 29 / - / 6 м2 |
| РАЙОНЫ: | Молодежний |
| Ипотека (согласие) : | - |
Адреса: Полтавська, Кременчугский, Кременчуг
1-на квартира Кременчук.Однокімнатна квартира Кременчук, Молодіжне, район зупинки Героїв України, поруч Кременчуцька гімназія №12 та дитячий садок №79. 9-поверховий цегляний будинок. Поверх 9-й, квартира не кутова, вікна на західний бік. Стан кімнати житловий, не завадив би косметичний ремонт: замінити лінолеум на підлозі та шпалери. Частково євроремонт: - санвузол: плитка, заміна труб, сантехніка, бойлер, пральна машина; - плитка на підлозі в коридорі та кухні; - пластикові вікна; - кондиціонер на кухні; - балкон обшитий, пластиковий склопакет, стяжка та лінолеум; - батареї та труби опалення замінені і добре працюють. - металеві двері у тамбур із можливістю замикати; - металеві вхідні двері. Документи готові, але оформити купівлю-продаж можливо буде у другій половині жовтня. Можливості відповідати на телефонні дзвінки немає. З усіма питаннями писати у месенджери ватсап, телеграм, вайбер










