Сдаётся офис в центре БЦ'Призма' ул. Глинки (№ 1-487-761)
Ціна: 27 717 грн.

Адреса: Глинки ул., 7, Дніпро, Дніпропетровська, Центральный
Характеристики
| Ціна: | 27 717 грн. |
|---|---|
| № об'єкта: | 1-487-761 |
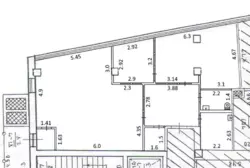
| Площа: | 104,20 м2 |
| Кабінетів: | 3 |
| Поверх: | 7 / 14 |
Опис
Оренда офісу в БЦ 'ПРИЗМА' 104,2 м2. БЦ 'ПРИЗМА' розташований у самому центрі міста зі зручною транспортною розв'язкою. Сусідить із торговими центрами, банками, супермаркетами. Будівлі БЦ 'ПРИЗМА' присвоєно високий клас якості - 'А' БЦ обладнаний: - системами протипожежної та охоронними сигналізаціями; - цілодобовим відео спостереженням; - автономним опаленням; - Двома ліфтами фірми OTIS; - системою клімат-контролю та припливно-витяжною вентиляцією; - швидкісним інтернетом; Пропонований офіс розташований на 7 поверсі 14 поверхової будівлі БЦ 'ПРИЗМА' Офіс складається з: - двох кабінетів; - великої зали; - серверної; - Кухні; - с/в. Наразі відбувається реновація приміщення.















