Здається офіс Пушкина пр., Дніпро, Дніпропетровська, Пушкина (№ 1-488-059)
Ціна: 32 000 грн. + комунальні

Адреса: Пушкина пр., Дніпро, Дніпропетровська, Пушкина
Характеристики
| Ціна: | 32 000 грн. + комунальні |
|---|---|
| № об'єкта: | 1-488-059 |
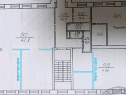
| Площа: | 175 м2 |
| Поверх: | 5 / 5 |
Опис
Доступний для довгострокової оренди офіс за адресою пр. Пушкіна, 8А. 5 поверх (мансарда). Загальна площа 173 м.кв. Оренда без меблів.
















