Здається офіс Журналистов ул., 13, Дніпро, Дніпропетровська, Косіора (№ 1-488-079)
Ціна: 16 920 грн.

Адреса: Журналистов ул., 13, Дніпро, Дніпропетровська, Косіора
Характеристики
| Ціна: | 16 920 грн. |
|---|---|
| № об'єкта: | 1-488-079 |
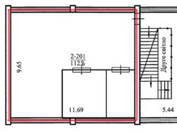
| Площа: | 112,8 м2 |
| Поверх: | 2 / 3 |
Опис
Аренда офисного помещения на закрытой территории завода Хладокомбинат
Расположение: Индустриальный район, ул. Журналистов, 13.
Площадь - 112,8 кв.м.
Состоит из 3-х кабинетов: большой кабинет с открытой планировкой и 2- небольших кабинетов.
Электрическая мощность до 20 кВт.
Высота потолка 3.5 м, металлопластиковые окна, мраморный пол.
Помещение находится на 2 этаже, санузел на 1- этаже.
Удобный подъезд и разгрузка, есть место для стоянки фур.
Стоимость аренды - 130 грн/кв.м., дополнительно оплачивается эксплуатация - 20 грн./кв.м и коммунальные платежи.


















