Аренда офиса на первом этаже 157 м.кв. (№ 1-488-414)
Ціна: 1 700 $ + комунальні

Адреса: Сичеславская Набережная, Дніпро, Дніпропетровська, Центральный, Набережна
Характеристики
| Ціна: | 1 700 $ + комунальні |
|---|---|
| № об'єкта: | 1-488-414 |
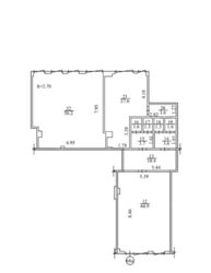
| Площа: | 156,17 м2 |
| Поверх: | 1 / 5 |
| Додатково: | кондиціонер, парковка |
Опис
Сдам офис рядом с набережной.
3 больших кабинета, 2 за стеклянной перегородкой для руководителей или переговоров, подсобное помещение, 2 санузла
- современный ремонт
- отдельный вход в офис
- кондиционирование и вентиляция
- охрана и видеонаблюдение
- подземный паркинг с необходимым количеством паркомест/надежное бомбоубежище
- упорядоченная придомовая территория
- развитая инфраструктура
Цена 11$ кв.м.
Звоните!












