Сдам помещение! (№ 1-494-207)
Ціна: 70 100 грн.

Адреса: Фучика ул., Дніпро, Дніпропетровська
Характеристики
| Ціна: | 70 100 грн. |
|---|---|
| № об'єкта: | 1-494-207 |
| Тип: | житловий фонд |
| Площа: | 280 м2 |
Опис
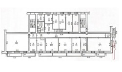
Аренда помещения под отделение банка, ресторан, офис, салон красоты, медицинское учреждение г. Днепр, ул. Ивана Акинфиева (Фучика).Помещение находится на цокольном этаже жилого 5-ти этажного дома. Общая площадь: 280,4 кв.м., высота потолка Н=2,50м., имеет отдельный вход. Электричество 20 кВт (возможно увеличение до 60 кВт). Вода и канализация: городские. Состояние помещение: требуется ремонт ,дополнительно оплачиваются коммунальные платежи.








